老後も快適に暮らせるようにした築40年以上の家のリフォームの施工事例
今回は、築40年以上の戸建てにお住まいの80代ご夫婦と60代娘さんのご依頼で
内外装フルリフォームを行いました。
工期: 約2か月
この当時の設計の主流は
・6畳の部屋が主流で段差が多い
・トイレ、お風呂が日当たりが悪い、狭い、タイルベースの床、壁で寒い、汚れが取れにくい
・サッシもシングル硝子、雨戸も締まりにくい。夏熱く、冬寒い(底冷えがする)など
歳を重ねるごとにこうした不便さは増していき
段差でのつまずきやヒートショックのリスクも
他人事ではなくなってきます。
これからの20年を考えて、今回はフルリフォームに踏み切りました。
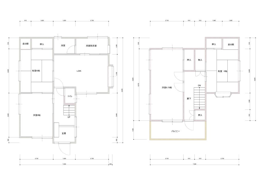
まずは、図面で間取り変更を、ご覧ください。

↓

毎日の暮らしで最も負担になっていたのが、急勾配の階段でした。
毎日の洗濯物を2階ベランダに運ぶたびに
足腰・膝への負担が重くのしかかっていました。
トイレも階下にしかなく、深夜にトイレに行くのが辛い。転倒、ヒートショックの恐れが.....
築40年越えの家、階段ビフォーアフター
ビフォー

一間(1800mm)で上がりきるストレート階段。

下りるのもかなりの急勾配感があり
手すりも途中までで危険です。
↓
アフター

廻り階段に変更しました。
1段の踏面も改装前は15センチ程度でしたが
改装後は23センチを確保しました。
階段・床材 Panasonic ベリティス グレージュヒッコーリ柄
築40年越えの家、1階LDK部分ビフォーアフター
階段の次にお悩みだったのは1階の居室の暗さでした。
LDK横の和室と洋室にはほとんど光が入らず
日中でも薄暗い為、間仕切壁を出来るだけ取り払い
広々としたLDKに改装しました。
ビフォー

キッチンは日中でも照明を付けないと暗いお部屋でした。

LDK横 和室(解体中)
↓
アフター

旧和室側にキッチンを移動し、リビング側を見渡せる広々とした空間になりました。
システムキッチン LIXIL シエラS 扉:クリエモカ ワークトップ:人造大理石 ベーシックホワイト

対面カウンターも設置したので
忙しい朝や軽い食事はこのカウンターで
家族みんなが集まる時はテーブルで食事を楽しめます。
ご高齢ということもあり、カウンター高さは
通常のテーブルと同じ70センチ程度の高さにしています。
カウンターの壁面はパネル貼にしているので
食べ物の油や汁が飛んでもサッと拭き取れ清潔に保てます。
アイカ タフウォールS SWN2531ZM
カウンター材:LIXIL ラシッサS クリエモカ

キッチン周りの収納は大型の家電収納を備えた
ローカウンタータイプをご提案しました。
旧和室がキッチンになりました。
押入だった部分に小窓を設けたので、風通しもよくなりました。
W2550mmの収納カウンターも設置したので
家電製品や食器類、食品のストックもスッキリ納まります。
床:Panasonic ベリティス グレージュヒッコリー柄
巾木・窓枠:LIXIL クリエモカ
壁・天井クロス:シンコール SLP318
築40年越えの家、1階浴室・洗面室ビフォーアフター
その他の水廻りも改装前より広くし、ゆとりのある空間になりました。
お風呂ビフォー

タイル貼の在来浴室の為、浴槽のまたぎも高く出入りが不安でした。
タイル床・壁は冬場の冷えが厳しく
ヒートショックの危険もありました。
↓
お風呂アフター

1616サイズのシステムバスルームにしました。
LIXIL システムバスルーム リデア + 電気式浴室暖房乾燥機
アクセントパネル:HN642 ウッドグレインライト
ベースパネル:LE301 マットホワイト
床:Y71 ベージュ 浴槽:NW1 ホワイト
ホワイトとベージュのアクセントパネルで爽やかかつ
暖かみのある空間になりました。
棚等はマグネットタイプを採用しているので
お好みの位置・高さに変更可能です。
洗面室ビフォー

収納が少ない為、雑然としがちでした。
寒くて狭く、高齢の方には特につらい環境でした。
↓
アフター

ホワイトの洗面化粧台と
ミントグリーンのアクセントクロスで清潔感のある空間にしました。
LIXIL ピアラ 扉:スタンダードタイプ ホワイト VP1
床:CF貼 リリカラ LH-81543
アクセントクロス:サンゲツ SP2583
ベース壁クロス:シンコール SLP318

収納もたっぷり確保したので
日用品のストックやリネン類もたっぷり収納出来ます。
脱衣スペースも広く、脱衣用のベンチも置けます。
暖房乾燥機でヒートショックの心配もありません。
収納扉:LIXIL ラシッサS クリエモカ

洗面脱衣室の掃き出し窓には
ルーバータイプのシャッター雨戸を取り付け。
道路側からの視線を遮りつつも、通風・採光を確保しました。
洗面脱衣室の引戸をあけておけばLDKとの風通しもよくなります。

階段下にあったトイレは旧浴室だった場所に移動。
間口1200mm×奥行1600mm程度を確保しているので
介護が必要になった場合にも安心です。
便器は新しかった為、既存の便器を再利用しました。
手洗器:LIXIL YL-A531タイプ BW1 ピュアホワイト
棚手摺り(L型タイプ・紙巻器付):LIXIL NKF-3WU2/WA ホワイト
床:CF貼 シンコール E-1059
壁:サンゲツ SP2586

階段下のトイレだった部分は収納スペースになりました。
リビングで使うものや、掃除道具などの収納に便利です。
築40年越えの家、2階部分ビフォーアフター
ビフォー

2階の居室も収納が少なく雑多感がありました。
↓
アフター

各部屋に大型収納を設置しました。
押入の外に出ている洋服やタンスに入っていた衣類も全てクローゼットに収納できます。

収納扉:LIXIL ラシッサS クリエモカ
内 部:南海プライウッド 枕棚+ハンガーパイプ

2階の一番陽当たりの良い場所(ベランダ隣接)に、フリースペース(約6畳)の部屋を設置。
冬は暖かく夏は風通しの良い空間なので
孫、曾孫さんが集まる時に遊べる部屋になりました。
寝室のある2階にトイレを新設
皆様がお元気で、階段の昇降も運動と言うことで
寝室は2階になりました。
就寝中の夜中のトイレは、一階までは不便なので2階にトイレを新設しました。
寝室のすぐそばに設置したので、深夜の移動も安全です。

LIXIL プレアスLSタイプを採用。
玄関周りにスロープと手摺を設置

外構も、高基礎で玄関段差がきつく
将来的に車イスになっても、玄関からの出入りが出来る様にと
スロープと手摺を設置しました。

玄関ホールはガーデニングやDIYの工具、道具も収納したいとのご要望があり
壁面に収納力たっぷりの玄関収納を設置しました。
また、土間部分も広く取り、スロープ設置で車いす対応も出来る様にしています。
土間タイル:名古屋モザイク シークロⅡ SIC-R0030
築40年越えの家のリフォームには耐震補強
築40年以上の内外装、水廻り、間取り変更の戸建てフルリフォーム。
築年数を考慮して、柱、筋交い、耐震金物等で、構造、耐震補強もしました。
また、全ての窓を、PG硝子のサッシに入れ替え、断熱性能も大幅にアップしました。
リフォーム前とは格段の温かさ、明るさ、楽な雨戸の開け閉めとすごく喜んで頂けました。
省エネリフォームの補助金も活用でき、お客様にとって大きなメリットになりました。
補助金については、お気軽にご相談ください。
工期は約2ケ月でしたが、施工中の家具、お荷物などの移動、保管も弊社で手配させて頂き
無事に完了・引き渡しを終えました。
「そろそろ住まいをどうにかしたい」とお考えの方、まずはお気軽にご相談ください。
マンションだけではなく戸建てのリフォーム・外壁塗装・屋根工事・外構工事など
大阪・神戸エリアを中心に幅広く対応しています。

お気軽にご相談ください
- 物件もまだ決まっていない・・・。
- 今の家をリフォームできるの?
- リフォームでどんなことができるの?
その他なんでもお気軽にご相談ください!
06-6943-5768
営業時間 9:00-18:00(土・日・祝日除く)

