前回の8月末のブログから、早や4ケ月....
2025年もカウントダウンじゃないですか😯!
HPのブログを、こまめに、定期的に更新すると言いながら
現場が忙しいと直ぐに.....。
これではやるやる詐欺ですね!😅(笑)
今回は、大阪市内の築12年のタワーマンションのフルリノベーションが完成したので
完成までの経過と完成写真を公開させて頂きます。
いよいよ本格的に、造作、設備等の建築工事が始動!

解体が終わると、まずは図面と現場との差異を細かくチェックし
図面に基づき、墨出し。
↑写真は、墨出しとマンションでは一番難しい
水廻り(キッチン、浴室、トイレ等)配置変更による給排水管
給排気ダクトの仕込み替えです。
床下と天井裏の懐がどれだけあるか、ルートは取れるかでプラン変更も余儀なくされる場合もあります。
今回も、完成図書と違う部分があり
排水管ルートと排気ダクトルートを変更しました。

↑こちらは、軽天工事による間仕切り壁造作。

今回、採用の床は仕上げ材一体型・床暖房Panasonicフリーほっと+マイスターウッドフロアWコート(L45仕様)です。
LDKは2系統での床暖房機能です。

私の熱中症対策は、短パン、Tシャツ!(笑)
タワーマンションの上層階は、開口できる窓が少なく
真夏の工事は、熱中症対策が大変ですが
今回は、お施主様のご好意もあり、取替えするエアコンを交換ぎりぎりまで使用させて頂けたので
安心して、効率よく工事をさせて頂けました。
ただ、マンションは近隣、特に階下、階上、両隣のお住いの方には
毎日の工事、作業騒音でご迷惑をお掛けするので
お昼休みを11時45分から1時半、作業終了は4時45分厳守となかなかの制約はありました💦
これもお施主様、ご近隣様への大事な対応と考えます。
今回のコンセプトは、主役は『眺望』、スタイルは『ホテルライクな空間』です。
リフォーム後の部屋から眺めです✨



タワーマンションの魅力と言えば、やはりその眺望、特に夜景ですよね。
今回は、皆が集うリビングからの眺望は勿論
一番在宅されてる奥様の家事の動線に加えて
眺望・景観を楽しみながら家事を
お客様が来られても大型収納で生活感を見せないホテルライクな空間を設計。
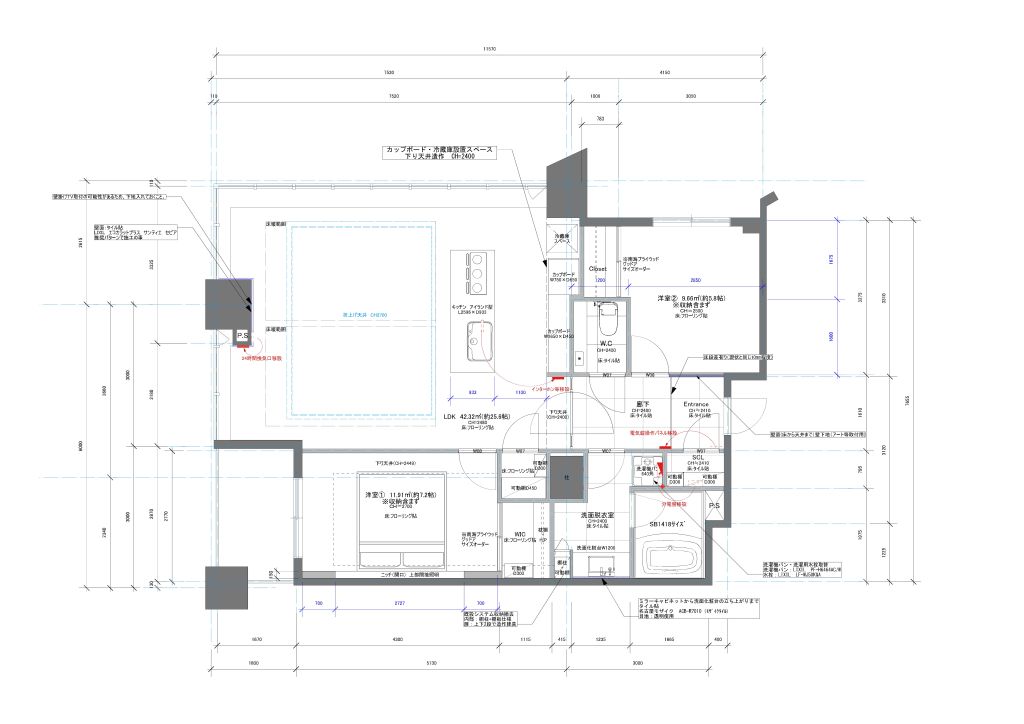
そのプランがこちら
Before

After

『ホテルライクな空間』を演出するリビングの主役は....キッチン!
リビングに、PanasonicのLクラスのW2600の対面カウンターキッチン。
人造大理石グラリオ御影ブラックのカウンターに
トリプルワイドフラットIHを採用。
収納は、ホテルライクな空間=生活感を出さない様に
背面にW2500のカップボード&家電収納を設置。
また、リビング側からの収納も含めて大容量に。
夜景は勿論、陽の出、夕日を眺めながらの食事、ティータイム、バータイムを楽しめる空間に




-777x1024.jpg)

大型収納と隠せる家電収納、食器洗い乾燥機を設けることで
普段はキッチンカウンター上にはないも無い状態を保てるので
いつもモデルルームの様な生活感のない空間を演出できます。
今回もとてもかっこいい空間に仕上がりました✌️
他にもアップしたい写真がたくさんあるのですが
後日施工例のページでアップします!
しばらくお待ちください~。
ホテルライクな空間にリノベーション希望の方は
お気軽にお問合せください🙋♂️

お気軽にご相談ください
- 物件もまだ決まっていない・・・。
- 今の家をリフォームできるの?
- リフォームでどんなことができるの?
その他なんでもお気軽にご相談ください!
06-6943-5768
営業時間 9:00-18:00(土・日・祝日除く)


